Kontakt
 
                        Mathilda Johansson, uthyrare
E-post: 
Telefon:
08-123 170 53
Karolinska vägen 22
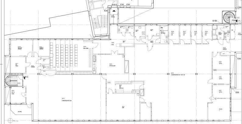
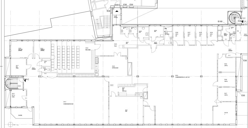
Prisvärda administrativa ytor om 884 kvm uthyres i Norra Hagastaden. Öppna arbetslandskap samt bra mötesrum och en egen föreläsningssal. Toppenläge nära stad, grönområden, service och med goda kommunikationer.
Korta fakta
Yta: 884 kvadratmeter (LOA)
Lokaltyp: Administration
Tillgänglig: Enligt överenskommelse
Adress: Karolinska vägen 22
Byggnad: F4, plan 03
Hyrestid: Lokalen är tillgänglig för uthyrning till 2029-12-31
Information om Solna sjukhusområde
Beskrivning
I norra Hagastaden ligger Solna sjukhusområde. Här finner du de vackra sjukhusbyggnaderna byggda på 30-talet. Den här lokalen ligger i huvudbyggnaden och har stora kontorsytor i öppet landskap, bra mötesrum och en egen föreläsningssal.
Passar inte denna lokal? Hör av dig så ser vi om det finns andra möjligheter!
Kommunikation och service
Till området är det goda kommunikationer med flertalet busslinjer i tät trafik. E4:an/Essingeleden går snabbt att nå.
Inom 10 minuters promenad finns restauranger, matbutiker, systembolag, apotek och träningsanläggningar.
Omgivning
Området har närheten till storstadens puls samtidigt som Hagaparkens lugn ligger ett stenkast bort. Ett unikt område där goda samverkansmöjligheter finns med universitet, näringsliv och hälso- och sjukvård.
Att hyra av Locum
Vi ser fram emot att ha dig som hyresgäst. Locum förvaltar, bygger och utvecklar två miljoner kvadratmeter vårdfastigheter åt vår ägare Region Stockholm. Genom engagemang, innovation och samverkan erbjuder vi sjukvården och invånarna i länet attraktiva och hållbara vårdmiljöer.
Vi bedriver förvaltningen av våra vårdfastigheter systematiskt med en väl fungerande skötsel och drift som bas. Tillsammans med våra driftentreprenörer på sjukhusen arbetar vi varje dag för att se till att värme, vatten, el, medicinska gaser och ventilation fungerar som det ska. Ett sjukhus är en komplex fastighet. Här finns många tekniska system som måste fungera dygnet runt, året runt för att den livsviktiga vården ska kunna bedrivas.
Fördelar med att att hyra lokal i Norra Hagastaden
Träffa två nya hyresgäster som berättar varför de valde att etablera sig här.

Passar inte denna lokal? Hör av dig så ser vi om det finns andra möjligheter!
Alla bilder
 
     
     
     
     
     
     
     
     
             
             
             
                                    