Kontakt

William Lindqvist, uthyrare
E-post:
Telefon:
08-123 170 87
Löwenströms väg 1
Här finns en lokal möjlig att utforma efter dina behov och önskemål för vård, utbildning eller administration.
Korta fakta
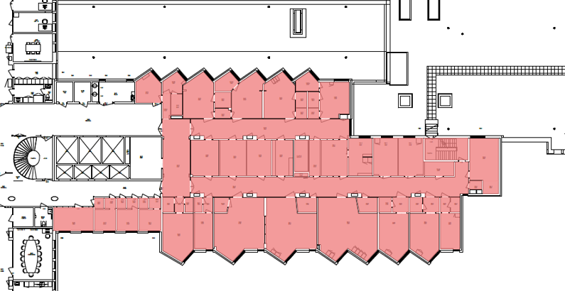
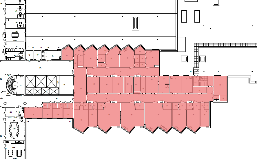
Yta: 750 kvadratmeter (LOA)
Lokaltyp: Passar för administration och vård
Tillgänglig: 1 januari 2025
Adress: Löwenströms väg 1 vid Löwenströmska sjukhuset
Information om Löwenströmska sjukhuset
Planritning och beskrivning
Lokalen är betongren och i behov av teknisk upprustning. Den är belägen en trappa upp i närhet av hisshall med utsikt över åkermark och sjön Fysingen. Här finns möjlighet att utforma lokalen efter dina behov och din verksamhet.
Övriga verksamheter i fastigheten är operation, geriatrik, röntgen, vårdcentral, laboratorium, rättspsykiatri, dialys, apotek. Kommersiell service i form av café, kiosk, restaurang och frisör.
Kommunikationer
Löwenströmska sjukhuset ligger naturskönt längs E4:an i Upplands Väsby kommun i norra Stockholm. Det går bra att ta sig hit både med bil och flera busslinjer.
Omgivning
Här får du en lokal som både ligger nära E4 och har direkt närhet till ängar, skog, vatten och promenadvägar. Sjukhuset har en intressant historia och kungliga anor.
Att hyra av Locum
Vi ser fram emot att ha dig som hyresgäst. Locum förvaltar, bygger och utvecklar två miljoner kvadratmeter vårdfastigheter åt vår ägare Region Stockholm. Genom engagemang, innovation och samverkan erbjuder vi sjukvården och invånarna i länet attraktiva och hållbara vårdmiljöer.
Vi bedriver förvaltningen av våra vårdfastigheter systematiskt med en väl fungerande skötsel och drift som bas. Tillsammans med våra driftentreprenörer på sjukhusen arbetar vi varje dag för att se till att värme, vatten, el, medicinska gaser och ventilation fungerar som det ska. Ett sjukhus är en komplex fastighet. Här finns många tekniska system som måste fungera dygnet runt, året runt för att den livsviktiga vården ska kunna bedrivas.
Alla bilder


