Locum vill använda statistikkakor/cookies i syfte att löpande förbättra webbplatsen. Samtycker du till det? Om du inte klickar på "Ja, jag samtycker" sätts endast de kakor som är nödvändiga för att webben ska fungera.
Projekt
Ny IVA/MIVA-avdelning och teknisk upprustning går hand i hand
Nu förbereder vi Södersjukhuset för framtidens vård! En ny intensivvårdsavdelning med 22 vårdplatser ska byggas. Avdelningen får därmed ökad kapacitet och mycket goda förutsättningar för patientsäker vård. Samtidigt moderniserar vi byggnadernas tekniska system. Tillsammans går detta under namnet IVA/MIVA-klustret.
På denna sida kan du ta del av information om byggnaden och vad som är aktuellt i byggprojektet just nu. Sist på sidan finns kontaktuppgifter för frågor och mer information.
Aktuellt i projektet (januari 2026)
Efter mycket förberedelser under hösten är det i början av 2026 dags att dra igång arbeten ute på plats, både inomhus och utomhus. Projektet kommer därmed att synas och märkas allt mer från januari.
Januari: Säkring av arbetsområdet och rivning av installationer på plan -2 och 5.
Februari: Byggställningar börjar monteras. Arbetet sker i etapper där vi startar på kortsidan av huset i närheten av barnakuten. Vi påbörjar också montage av bygghiss och tornkran.
Övrigt: Lättrivning och sanering på plan 3 och 4. Förberedelser för provisorier, både för bygget och för de byggnader som ska vara i fortsatt drift under byggproduktionen.
Arbetet kommer att medföra viss ökad trafik i det berörda området och vi ber om allas uppmärksamhet och försiktighet. Vi uppdaterar störningar löpande på denna sida.

Om projektet
Södersjukhusets byggdes och utrustades under andra världskriget och många av installationerna är original. För att byggnaderna ska ha möjlighet att uppfylla framtidens krav på moderna vårdlokaler behöver vi rusta upp dess infrastruktur. Detsamma gäller sjukhusets tekniska system som behöver anpassas till nutidens högt ställda funktionskrav. Med detta som bakgrund påbörjas nu arbetet med en omfattande teknisk upprustning av byggnad 01, 02, 09 och 07.
Samtidigt bygger vi en ny modern intensivvårdsavdelning på hela plan 4. Sjukhuset har idag för få IVA-platser i förhållande till sin stora akut- och operationsverksamhet och därmed en för hög beläggningsgrad. Kritiskt sjuka patienter måste ofta transporteras till andra sjukhus. Det finns därför ett stort behov av en ny, modern intensivvårdsavdelning med högre kapacitet, bättre arbetsmiljö för personalen och ny medicinteknisk utrustning.
För att möjliggöra framkomlighet i byggprojektet kommer vi under vissa etapper behöva evakuera några verksamheter. Detta sker i samråd med Södersjukhuset och berörda verksamheter meddelas i god tid innan.
Ny IVA/MIVA-avdelning
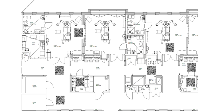
Den nya IVA/MIVA-avdelningen ingår som en del av den långsiktiga planen för utvecklingen av Södersjukhuset. Den placeras i nära anslutning till akuten och operationsavdelningen på ett plan, cirka 3 000 kvadratmeter stort, som går igenom flera byggnader (01, 02, 07 och 09).
Lokalerna är idag tomställda och det blir en total ombyggnad av våningsplanet utifrån konceptprogrammet för intensivvårdlokaler.

Avdelningen får 22 vårdplatser, vilket både ökar den nuvarande kapaciteten och ger mycket goda förutsättning för patientsäker vård. Beräkningar indikerar att sjukhuset därmed uppnår en beläggningsgrad på cirka 80 procent och att transporter av patienter till andra sjukhus skulle minska.
Nyfiken på hur det kommer se ut?
Fota av en QR-kod i dokumentet som du hittar här och titta runt i de nya miljöerna!
Den nya planlösningen erbjuder en fullgod arbetsmiljö där säkerhetsaspekter uppfylls, lokalerna blir flexibla och viktiga funktioner så som närförråd, dokumentrum, patientkök, samtalsrum och läkemedelsrum finns på plats. Lokalerna kommer även uppfylla högt ställda krav på bland annat ventilation, kyla/värme, medicinska gaser och brandsäkerhet.
Vad vi gör:
- 22 stycken enkelrum på 30 kvadratmeter med egen RWC.
- All administration och stödfunktioner kommer att placeras i byggnad 01, 03 och 16 och ett nytt väntrum byggs i byggnad 03.
- Befintliga hängkorridorer kommer att renoveras och en ny hängkorridor byggs vid byggnad 07.
- Nya fläktrum anläggs på taket till byggnad 02 och byggnad 09.
- Taket läggs om på byggnad 02, 07 och 09.
- Hiss 18B i byggnad 07 renoveras.
Teknisk upprustning
Parallellt med tillskapandet av den nya IVA/MIVA-avdelningen görs också en uppgradering av de tekniska systemen, såsom tappvatten, dagvatten/spillvatten, ventilation, värmesystem, el samt styr och övervakning. Det gör vi för att möta kraven på framtidens vård som blir alltmer teknisk komplex, men även för att skapa en robust byggnad med lång livslängd där system som passerat sin tekniska livslängd byts ut och system, som bland annat komfortkyla, kompletteras i byggnaden.

I den tekniska upprustningen av byggnad 01 ingår:
- Nytt ventilationssystem
- Renovering av abonnentcentralen (kulvert plan -6)
- Total ytskiktsrenovering
- Nya stammar för samtliga system; ventilationskanaler, spridningsnät för el-/tele samt ny belysning
- Nya TDK-A* rum
- Nya apparatskåp
- Nytt brand- och nödutrymmningssystem
Just nu pågår även byggnationen av en ny kylcentral på taket med ett schakt som dras ned till en ny kylcentral på plan -2. Dessutom pågår bygget av PCI/PACE på plan 1 och teknisk upprustning på plan 0, -1 och -2.
I den tekniska upprustningen av byggnad 02, 07 och 09 ingår:
- Nya ventilationsaggregat i byggnad 07
- Anslutningsbrygga till byggnad 10
- Renovering av abonnentcentralen (kulvert plan -6)
- Ny nätstation samt uppgradering av de tre befintliga (kulvert plan -6)
- Nya stammar för samtliga system, inklusive ventilationskanaler genom alla våningsplan
- Nya radiatorer och VS-system, alla våningsplan
- Rumsbildning av nya TDK-A* rum
- Nya apparatskåp
- Nytt brand- och nödutrymmningssystem
*TDK = Ett TDK-rum är ett teknikutrymme som används för att hysa teknisk utrustning och system.
Yttre logistik - Logistikcenter Öst
För att möjliggöra byggprojektet kommer det ske en del förändringar i den yttre miljön. Genom Logistikcenter Öst separerar vi flödena för material, avfall och yrkesarbetare i bygget från sjukhusets akutflöden. Bland annat kommer vi bygga upp en bodetablering med 16 byggbodar. En gångbro förbinder bodetableringen med materialytan som kommer sträcka sig över en del av P-platserna utanför förlossningen. En tornkran kommer också att monteras på en av innergårdarna mellan Byggnaderna 06, 07 och 15.
Hela Logistikcenter Öst är planerad och utformad utifrån att störa verksamheterna så lite som möljligt.

Under byggprojektets gång kommer det att ske en hel del materialtransporter. Dessa samordnas med vården för att inte hindra eller stoppa sjukhusets leveranser och patientflöden.
Nyfiken på Logistikcenter Öst?
Vi har ställt tre frågor till Mikael Karlsson, projektledare för den yttre logistiken, som berättar mer om vad som kommer ske i området i närtid och hur du som vistas på sjukhusområdet kommer märka av förändringarna.
Störningar
Pulsmöten hålls på tisdagar klockan 08.30 på plan -1 i hisshall I och informationsbrev skickas ut till berörda verksamheter varannan vecka där det informeras om aktuella störningar.
Du kan även ta del av aktuella störningar här.
Håll dig uppdaterad!
Mer information om byggprojektet och relaterade arbeten kommuniceras löpande i olika forum och kanaler beroende på typ av information och vem som påverkas. För vårdpersonal är Locums nyhetsbrev, Södersjukhusets intranät och denna webbsida centrala kanaler. Projektet har löpande dialog med berörda verksamheter.
Vill du veta mer eller har frågor?
Förvaltare Ludvig Kojcevski (byggnad 01): ludvig.kojcevski@regionstockholm.se
Förvaltare Sofia Persson Borg (övriga byggnader): sofia.persson-borg@regionstockholm.se
Projektledare (IVA/MIVA) Andreas Sandin: andreas.sandin@regionstockholm.se
Projektledare (byggnad 01) Mikael Husbom: mikael.husbom@regionstockholm.se
Projektledare (byggnad 02, 09, 07) Joel Backstad: joel.backstad@regionstockholm.se
Projektledare (övergripande) Linda Vikstander: linda.vikstander@regionstockholm.se
Projektledare (yttre logistik) Mikael Karlsson: mikael.karlsson@regionstockholm.se
Kontakt Södersjukhuset: fastighetssektionen.sodersjukhuset@regionstockholm.se
Om projektet
- Start:
- Planerat slutdatum:
- .
Senast uppdaterad: